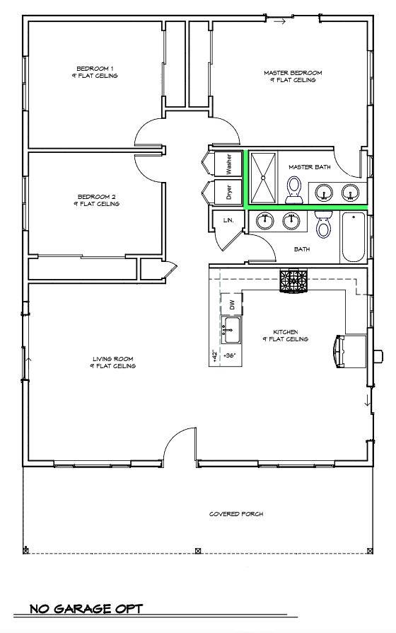
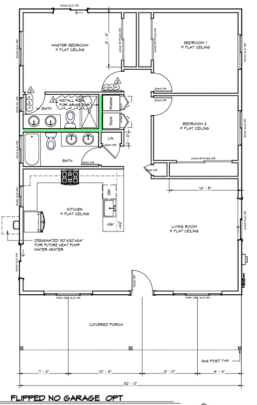
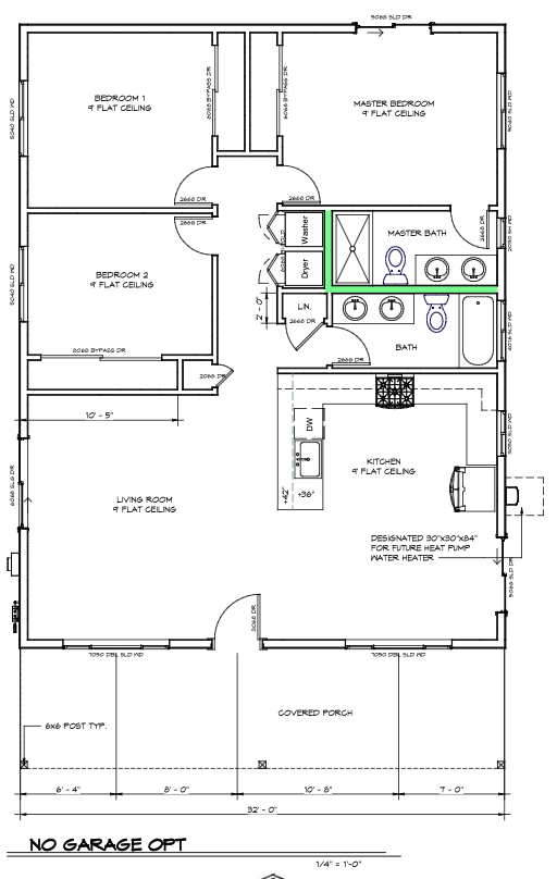
The Willow – No Garage (Den Option)
Available in Paradise & Butte County
1,316 sq ft · 2–3 beds · 2 baths

Description
The Willow was designed with consideration in accommodating narrow properties as well as the consideration of septic capacity, thus offering a den option. The home offers a functional floor plan with an open living/dining/kitchen area and a great counter just waiting for bar stools! Sliding doors offer ample opportunity for natural light to seep in and easy access to the beautiful outdoors. The Willow has been master planned with both a gable OR hip roof option and the floor plan is available flipped – you choose the look!