The Willow – Garage Left (Den Option)
Available in Paradise & Butte County
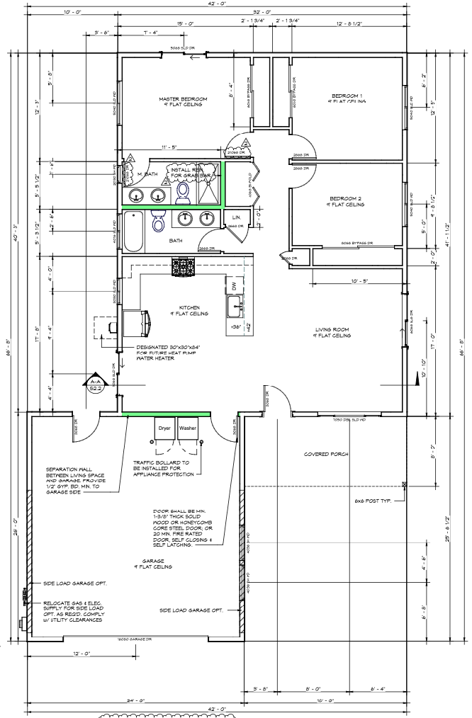
1,316 sq ft · 2–3 beds · 2 baths

Description
The Willow was designed with consideration in accommodating narrow properties as well as the consideration of septic capacity, thus offering a den option. The home offers a functional floor plan with an open living/dining/kitchen area and a great counter just waiting for bar stools! Sliding doors offer ample opportunity for natural light to seep in and easy access to the beautiful outdoors. The Willow has been master planned with both a gable OR hip roof option and the floor plan is available flipped – you choose the look!
Elevations & Renderings
Engineer: Rancho EngineeringA long-time Paradise firm, Rancho Engineering is owned and operated by Jarrod and Kelly Holliday. Jarrod stepped up right away to commit the resources of Rancho for the floor plan library and to serve the community he calls home. Rancho Engineering is a civil engineering firm that specializes in structural design, custom home design and septic system design. Phone: (530) 877-3700 | Engineer's Website |