The Poplar
Available in Paradise
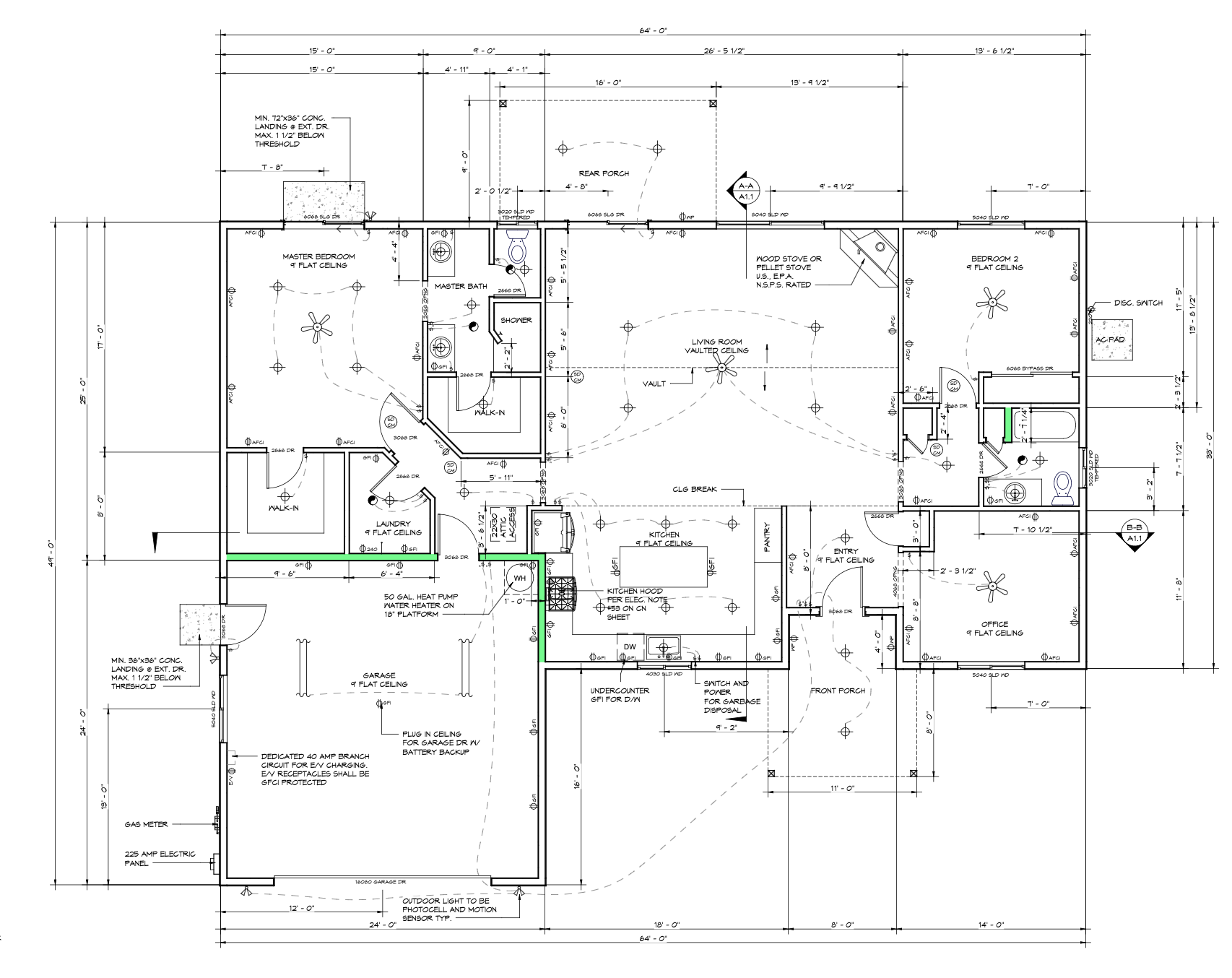
1,863 sq ft · 2–3 beds · 2 baths

Description
Introducing the Poplar, our latest addition to the master plan library. This home boasts an open concept design, providing a fantastic footprint and a range of options to suit your needs. Choose between a spacious two/three-bedroom, two-bathroom layout or a cozy two-bedroom, two-bathroom layout with an added bonus. Whether you’re a family or an individual seeking more comfortable living space, the Poplar is the perfect choice.
Elevations & Renderings
Engineer: Rancho EngineeringA long-time Paradise firm, Rancho Engineering is owned and operated by Jarrod and Kelly Holliday. Jarrod stepped up right away to commit the resources of Rancho for the floor plan library and to serve the community he calls home. Rancho Engineering is a civil engineering firm that specializes in structural design, custom home design and septic system design. Phone: (530) 877-3700 | Engineer's Website |