The Ponderosa – Hip Roof
Available in Paradise & Butte County
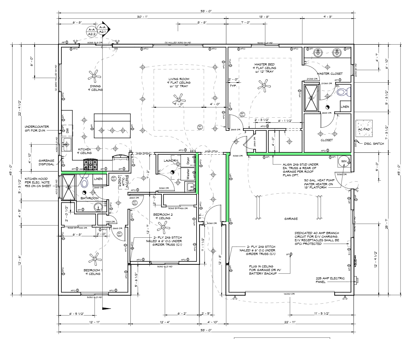
1,674 sq ft · 3 beds · 2 baths

Description
This ranch style family home offers a single-level, functional layout with an open kitchen, dining and living area. The split bedroom design provides master suite privacy. Great ceiling height gives an extra feeling of space and moments of tray ceiling detail add to the character!
Engineer: Rancho EngineeringA long-time Paradise firm, Rancho Engineering is owned and operated by Jarrod and Kelly Holliday. Jarrod stepped up right away to commit the resources of Rancho for the floor plan library and to serve the community he calls home. Rancho Engineering is a civil engineering firm that specializes in structural design, custom home design and septic system design. Phone: (530) 877-3700 | Engineer's Website |