The Birch – No Garage
Available in Paradise & Butte County
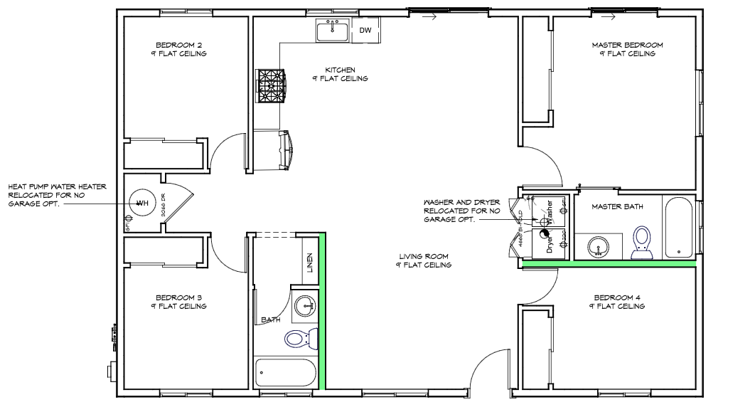
1,260 sq ft · 1–4 beds · 2 baths

Description
Introducing our first 4-bedroom option – The Birch! Carefully designed to accommodate larger families or those seeking more bedroom choices while being mindful of septic capacity. The Birch features a master plan with a gable roof, offering the flexibility to choose between 1, 2, 3, or 4 bedrooms with an office option. Additionally, you can opt for no garage, a 1-car garage, or a 2-car garage, tailoring the home to suit your needs perfectly.
Elevations & Renderings
Engineer: Rancho EngineeringA long-time Paradise firm, Rancho Engineering is owned and operated by Jarrod and Kelly Holliday. Jarrod stepped up right away to commit the resources of Rancho for the floor plan library and to serve the community he calls home. Rancho Engineering is a civil engineering firm that specializes in structural design, custom home design and septic system design. Phone: (530) 877-3700 | Engineer's Website |