Madrone – Gable Roof
Available in Paradise
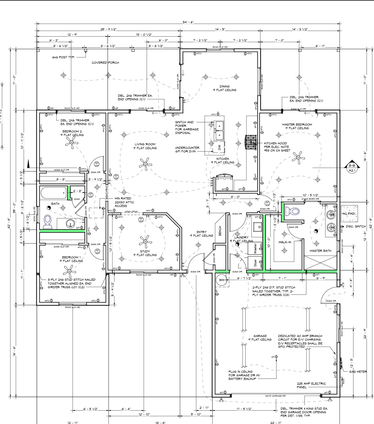
1,816 sq ft · 2–4 beds · 2 baths

Description
This ranch style home offers a single-level, functional layout with a large, open kitchen/dining/living area. The split bedroom layout provides master suite privacy. This home has great storage options – a pantry, indoor laundry, and a bonus room!
Elevations & Renderings
Engineer: Rancho Engineering with Paradise Design GroupThis home was originally designed by Paradise Design Group and was later adopted by Rancho Engineering. Rancho Engineering, a long-standing Paradise firm, is owned and operated by Jarrod and Kelly Holliday. Jarrod stepped up right away to commit the resources of Rancho for the floor plan library and to serve the community he calls home. Rancho Engineering is a civil engineering firm that specializes in structural design, custom home design and septic system design. Phone: (530) 877-3700 | Engineer's Website |