Hope House – Den Option
Available in Paradise
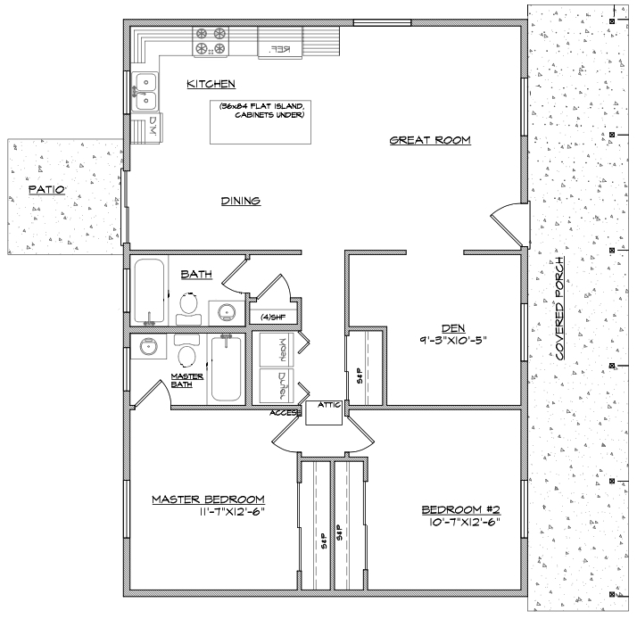
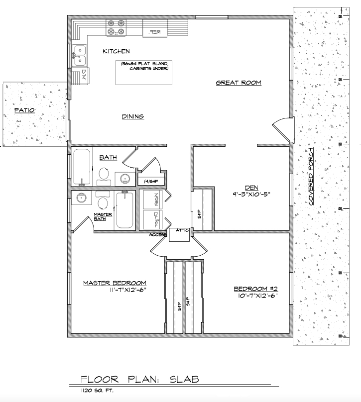
1,120 sq ft · 2 bed · 2 bath
![]() |
Description
Hope House with the den option is designed for ease of livability. Its versatile design allows the homeowner to customize finishes and truly make it a home. This 2 bedroom, 2 bath home with a den boasts an open concept living area with a kitchen island, indoor laundry, and a great front porch perfect for enjoying the outdoors!
Elevations & Renderings
|
|
|
|
|
|
|
Engineer: VROC – Jackson & Sands EngineeringVolunteers Rebuilding Our Community (VROC) have partnered with local engineering firm Jackson & Sands to offer simple and efficient floor plans in the Master Plan Library. VROC is a ministry of Hope Crisis Response Network (HCRN), a 501(c)3 faith-based disaster response organization serving individuals, families, and communities impacted by disaster across Northern California. HCRN does not charge for any of the work they do to help families rebuild in partnership with the local Long-Term Recovery Program. Phone: (530) 648-4232 | Engineer's Website |
