Hope House 2 – Side Entry
Available in Paradise
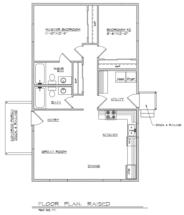
960 sq ft · 2 bed · 2 bath
|
Description
Hope House 2 with a side entry is designed for efficiency and ease of livability. Its versatile design allows the homeowner to customize finishes and truly make it a home. This 2 bedroom, 2 bath home boasts an open concept living area, an indoor utility room, and a perfect front porch!
Elevations & Renderings
|
|
|
|
|
Engineer: VROC – Jackson & Sands EngineeringVolunteers Rebuilding Our Community (VROC) have partnered with local engineering firm Jackson & Sands to offer simple and efficient floor plans in the Master Plan Library. VROC is a ministry of Hope Crisis Response Network (HCRN), a 501(c)3 faith-based disaster response organization serving individuals, families, and communities impacted by disaster across Northern California. HCRN does not charge for any of the work they do to help families rebuild in partnership with the local Long-Term Recovery Program. Phone: (530) 648-4232 | Engineer's Website |